Conquering Campus Town: Finding Retail or Commercial Space in State College, PA
State College, with its vibrant student population and bustling downtown, is a prime location for businesses of all kinds. But finding the perfect retail or commercial space can feel like navigating a Penn State exam during finals week. Fear not, this guide equips you with the knowledge and strategies to secure your dream spot in Happy Valley.
Know Your Needs:
- Business type:
Is your store catering to students, residents, or a mix? Understanding your target demographic helps define ideal locations and square footage. - Budget:
Be realistic about your rent affordability. Factor in utilities, maintenance, and potential renovations. - Must-haves:
List essential features like parking, visibility, and ADA compliance. Prioritize based on your business model.
Seek the Right Tools:
- Local Brokers:
Partner with an agency specializing in State College properties. Their local expertise is invaluable.
Location, Location, Location:
- Downtown:
Bustling with foot traffic, but rent can be higher. Ideal for businesses targeting students and tourists. - Near Campus:
Prime for student-oriented ventures, but consider parking limitations and competition. - Neighborhoods:
Explore areas like College Heights, Park Forest, and Fox Run for more affordable options.
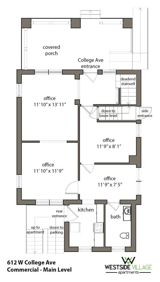
High-Visibility Office/Retail Space in Bustling Downtown State College!
Great Location:
Capture foot traffic and brand visibility with a storefront directly on bustling W. College Ave. in the heart of State College.
Versatile Layout:
Adapt the space to your needs with 890 sq ft of open office area, 2 additional storage rooms, 2 bathrooms, and a convenient kitchen area.
Double the Impact:
Utilize the space for both retail and office functions, maximizing your exposure and functionality.
Spacious and Inviting:
Welcome clients and customers with a large covered porch, creating a warm and inviting first impression.
Flexible Terms:
Triple Net Lease structure offers cost-efficiency and customization options for your business needs.
Ideal for:
Startups and established businesses seeking high-visibility locations
Retailers looking for prime downtown foot traffic
Professionals seeking flexible office space with storage and amenities
Terms:
Rent: $1,490
Application Fee: $45
Security Deposit: $1,490
Don't miss this opportunity to own a piece of downtown State College!
Contact us at (814) 913-4879 today for a tour and discover your business potential.
Bonus Tip:
Be patient and persistent.
Finding the perfect space takes time. Network with other businesses, attend industry events and stay updated on new developments.
Remember:
Finding the right commercial space is a crucial step in your State College business journey. By following these tips and conducting thorough research, you'll be well on your way to securing a location that fuels your success. Now get out there and conquer that campus town!New Paragraph




























